第五届全国大学生结构设计信息技术大赛获奖名单于5月13日公布,祝贺代表yl23411永利集团的十一支参赛队伍从A组208所高校提交的1110份作品中脱颖而出,再获佳绩!
本次全国大学生结构设计信息技术大赛由中国土木工程学会教育工作委员会以及清华大学主办,由华南理工大学、哈尔滨工业大学和西安建筑科技大学联合协办。该赛事是国内高校土木工程专业领域内最具影响力的赛事之一,旨在促进高等学校土木工程专业及相关专业人士培养模式改革,提高高等学校土木工程专业及相关专业创新型,应用型人才的培养质量,推进高校BIM实践教学,提高大学生的科技创新能力和实践技能。
本次大赛前,我院邀请了深圳市广厦科技有限公司副总经理陈雷以及技术部工程师陈世平对赛题进行解读,并对大赛所用结构设计软件中的各项参数设置进行了现场教学,多位专业老师在备赛过程中及时跟进并指导参赛队伍。最终,我院学子在本赛中再次取得优异成绩,共获特等奖2项,一等奖5项,二等奖2项,三等奖2项。
以下是本届全国大学生结构设计信息技术大赛获奖队伍名单:

(第五届全国大学生结构设计信息技术大赛获奖名单)
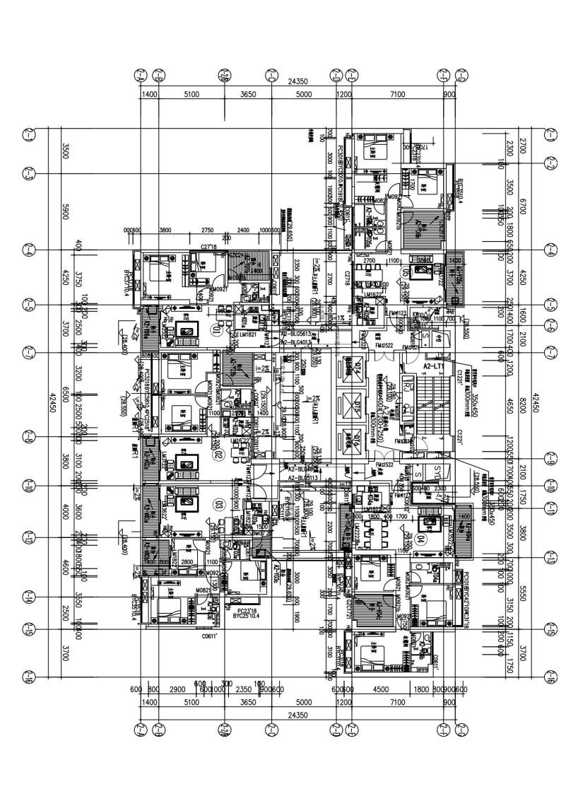
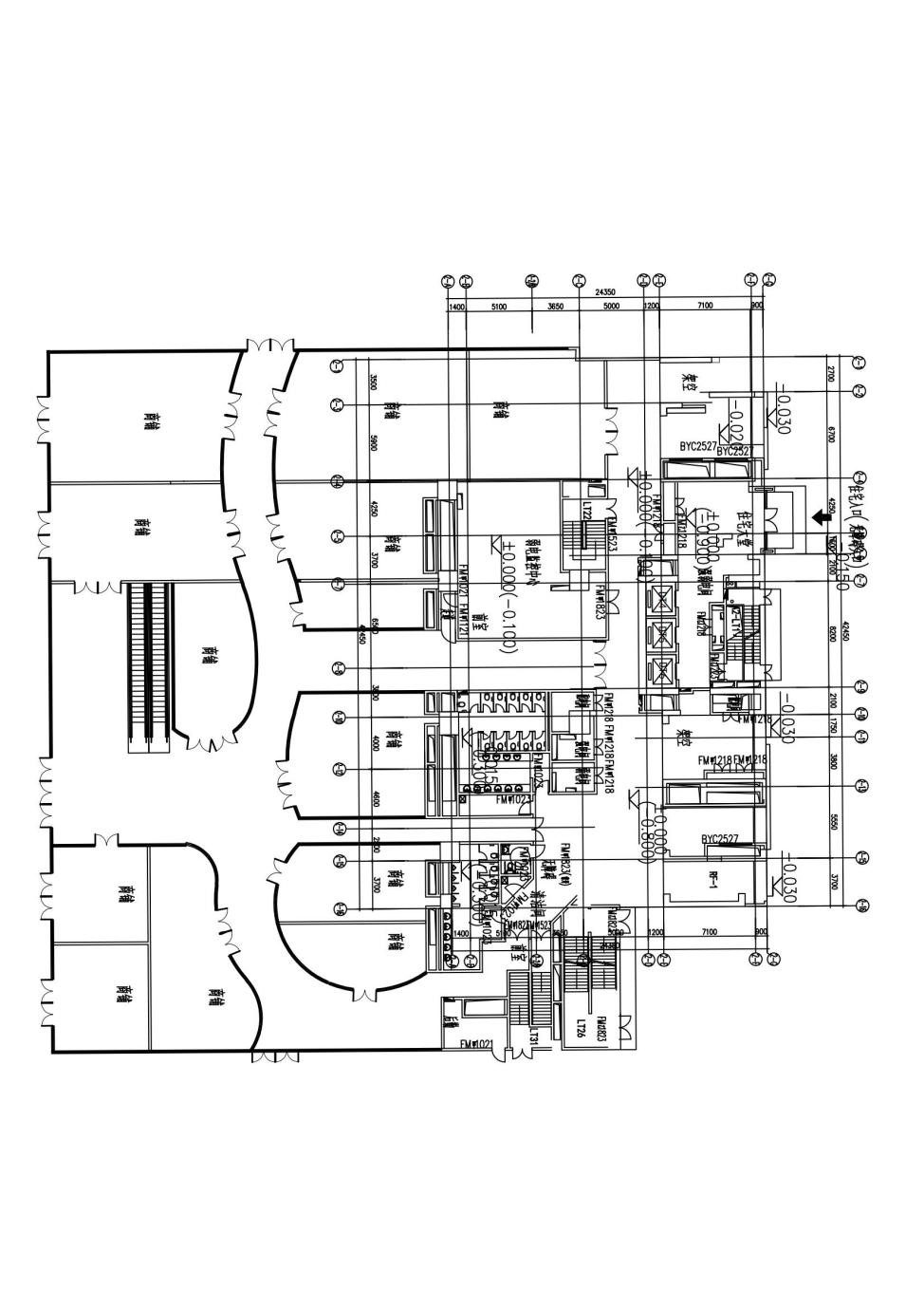
赛题所选项目为某商住一体的住宅楼建筑。要求参赛队伍根据建筑平面图,各楼层功能分区及功能布置进行结构建模,建立计算分析模型和三维结构信息模型。


(第五届全国大学生结构设计信息技术大赛赛题中住宅塔楼标准层及商场平面图)
历年来,我校重视各类赛事以及对学生的培养,在大量优秀的专业老师和我校学子的共同努力之下,在全国大学生结构设计信息技术大赛上累计获奖:特等奖8项,一等奖15项,二等奖14项,三等奖5项。期待更多我校学子在未来的比赛中再创佳绩!
(图/ 文/结构设计部 陈炜恒)